以20m環形加熱爐為例,由于爐墻和爐頂所用澆注料熱容量較大,存在升、降溫速度慢且散熱大的弊端,不能滿足生產合同不足、生產規格多,爐子升(待)溫、停產頻繁的需求,導致爐子的熱效率、燃耗等指標升高,增加了生產成本。為提高爐子的升溫速度,減少爐子的熱損失,降低燃料消耗,因此在環形爐的內、外環爐墻和爐頂的內表粘貼多晶莫來石纖維貼塊。
多晶莫來石纖維是一種以莫來石晶相形式存在的多晶質耐火纖維,其制取工藝是按形成單一晶體——莫來石(3Al2O3、2SiO2)進行化學配方,由可溶性鋁、硅鹽經過高溫完成晶相轉變而制成的,制作過程是首先在低溫下將有黏度的膠體溶液進行噴吹和甩絲,形成纖維的原纖維,后經高溫燒制使其纖維內部的原子成有序排列,組織晶體化,消除處于介穩定的玻璃態。
多晶莫來石纖維的使用溫度要比普通硅酸鋁纖維提高300℃左右。其基本特點是:容重低、導熱系數低、施工安裝方便:施工時無需改動原有爐體,依靠高溫黏結劑粘貼,無需耐熱鋼錨固件固定:工程費用低,具有良好的技術和經濟優勢;蓄熱量低,保溫效果好,明顯降低爐體的外壁溫度;纖維貼塊與原爐襯緊密無縫隙接觸,使整個爐壁內襯厚度均勻、平整美觀、爐體壽命提高,長期使用溫度可達1500℃,是高溫工業爐理想的節能降耗材料。20m環形加熱爐采用D-1600多晶莫來石纖維貼面塊,規格為200mm×100mm×50mm,其性能如表1所示。

多晶莫來石纖維的施工
(1)為確保良好的粘貼效果,先將環形爐的爐墻和爐頂工作面的灰塵等雜物徹底清理干凈,鏟平表面的結瘤,最好在基面進行“拉毛”處理。
(2)施工時應提前將高溫黏結劑攪拌均勻,稠度適宜。粘貼時,高溫黏結劑應刷涂均勻、飽滿。
(3)在施工部位刷上一層高溫黏結劑(約7~10kg/m2),同時在多晶莫來石貼塊表面抹一層高溫黏結劑(約2kg/m2),將貼面塊保持10%~15%的壓縮量,粘貼于環形爐爐墻和爐頂工作面。
(4)粘貼多晶莫來石貼塊時,高溫黏結劑應刷涂均勻、飽滿。貼塊抹好黏結劑后應立即貼在預定的工作面上,并用木棰壓緊,使之牢固。粘貼和壓緊時不得推動已經貼好的相鄰的貼塊。
(5)施工時,應保證相鄰貼塊擠緊,并避免纖維制品交叉角的竄氣縫。且貼塊與基面連接處,應把纖維制品對折擠進縫隙內。
(6)在燒嘴、排煙口、窺視孔等部位,用多晶莫來石纖維貼塊加黏結劑填實,不得松散或有間隙。
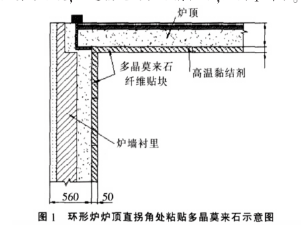
(7)爐頂直拐角處粘貼多晶莫來石纖維貼塊,應將爐頂的貼塊伸到爐墻原爐襯里,用爐墻的貼塊支撐爐頂的貼塊,且連接處用黏結劑粘貼,如圖1所示。

(8)爐頂圓拐角處粘貼多晶莫來石纖維貼塊,應將貼塊按圓角處的形狀現場彎曲成原爐襯圓角形狀,確保貼塊的粘貼強度和此處的密閉、保溫效果,如圖2所示。

(9)粘貼多晶莫來石貼塊的高溫黏結劑型號為OSM-C1300,其性能見表2所示。

使用效果
20m環形爐從2009年6月粘貼多晶莫來石纖維貼塊至今已正常生產2年,目前使用情況良好。2011年4月初入爐檢查其剝落率在10%~15%左右,可以做到一次投入使用壽命兩年以上。
改善爐區操作環境,延長爐墻和爐頂的使用壽命20m環形爐爐墻和爐頂工作面粘貼多晶莫來石纖維貼塊后,其散熱量降低,爐區環境尤其是爐頂環境得到了較為明顯的改善,同時避免了高溫煙氣對爐墻和爐頂工作面的直接沖刷,有效地防止了耐材的開裂和剝落,延長了爐子的使用壽命。
增加輻射傳熱,減少熱損失,降低燃料消耗多晶莫來石纖維的黑度為0.95,環形加熱爐內襯粘貼多晶莫來石纖維后,爐內熱輻射明顯增強,提高了爐子的加熱能力和管坯的加熱速度,尤其是環形爐加熱Φ220及以上大管坯時效果更為明顯。為了檢驗、對比使用效果,施工前、后(在同一生產條件下)分別在環形爐6個生產工藝段的內、外環爐墻鋼板以及爐頂上各選定2個測溫點用紅外測溫儀進行測溫,將測試溫度記錄并進行比較,見表3。

從表3可以看出,在生產條件相同的情況下,20m環形加熱爐內、外環爐墻和爐頂粘貼多晶莫來石耐火纖維后,內、外環爐墻鋼板和爐頂的平均溫度分別降低了9.8℃、14.4℃、37.2℃,有效地降低了爐體外表溫度,經過測算,可減少散熱115.4MJ/h,降低混合煤氣消耗121.3m3/h,全年按5500h生產時間計算,每年可降低燃氣消耗667086m3,年可節約燃氣成本50萬元左右。
實踐證明,20m環形加熱爐的重質襯里表面粘貼熱容量較低,輻射較強的多晶莫來石纖維貼塊,能有效地改善工業爐絕熱襯里結構,減少爐體熱熱損失和蓄熱量,提高爐子的升溫速度,縮短加熱爐的升溫時間,提高加熱質量,縮短加熱時間,降低加熱管坯在高溫環境中的氧化燒損,能較好地適應多鋼種、多規格管坯、頻繁停(待)產的生產情況,顯著提高了爐子的經濟性,有利于節能和環保,值得廣泛使用。